Courtier Immobilier
Unité au rez-de-chaussée avec sous-sol entièrement aménagé, offrant de nombreux rangements sur deux niveaux. Finitions modernes. Aire de vie ouverte, lumineuse et cuisine moderne avec îlot central, comptoir-lunch et armoires bicolores, comptoirs en Quartz. Quatre chambres dont trois au sous-sol (une avec walk-in), deux salles de bain complètes, et salle de lavage indépendante. Balcon arrière et un stationnement. Emplacement idéal entre Bannantyne et de Verdun, à proximité des écoles, garderies, parcs, du fleuve et de la rue Wellington. Excellente accessibilité : transports en commun, BIXI, métro et axes routiers majeurs à quelques minutes.
L'UNITÉ :
* Unité au rez-de-chaussée avec sous-sol entièrement emménagé
* Finitions modernes haut de gamme
* Beaucoup d'espaces de rangement sur les 2 niveaux
* Aire de vie ouverte et lumineuse
* Cuisine dernier cri avec îlot central et comptoir-lunch, armoires bicolores et comptoirs en Quartz
* 4 chambres au total, dont 3 au sous-sol (une des trois a un grand walk-in, les trois autres ont des garde-robes double), toutes de belles dimensions
* 2 salles de bain complètes (RDC avec douche en verre et céramique, S-S avec bain-douche avec portes de verre et meuble lavabo double)
* Salle de lavage indépendante au sous-sol
* Belle gestion de copropriété
L'EXTÉRIEUR -- ESPACES APPRÉCIÉS:
* Balcon arrière
* 1 Espace de stationnement en arrière
LOCALISATION -- PRÈS DES SERVICES :
* Situé entre les rues Bannantyne et de Verdun
* À quelques minutes de la rue Wellington et ses restaurants, commerces et pubs
* À 5 minutes à pied de l'école primaire Verdun
* Plusieurs autres écoles à distance de marche : École Chanoine-Joseph-Théorêt, École alternative des Saules-Rieurs, École primaire Notre-Dame-de-Lourdes, St Thomas More Catholic Elementary, Riverview Elementary School, Centre d'éducation des adultes Champlain, Centre de formation professionnelle des Carrefours
* Plusieurs garderies à distance de marche : Happy Face Daycare, Garderie Minois Fripon, Garderie ABC, CPE Soleil le Vent
* À 5 minutes à pied du Parc Normand-Dawe, à 7-9 minutes à pied des parcs Cooney, Archie-Wilcox et Woodland avec terrain de jeu et terrain de tennis
* À 12 minutes à pied du parc Quai de la Tortue (bord de l'eau, aires de jeu, qui de pêche, Natatorium etc.)
* À 5 minutes à pied du bord de l'eau (fleuve) avec magnifique sentier pédestre, piste cyclable, nouvelle plage et plus
TRANSPORT - FACILE AVEC PLUSIEURS OPTIONS!
* "Walk Score" 88 et "Bike Score" 89
* À côté de plusieurs lignes d'autobus : 108, 107, 37, 350, 112, 107
* À 2 minutes à pied d'une station BIXI
* Station Communauto à 14 minutes à pied
* Accès facile à 3 stations de métro : Jolicoeur, Verdun et Monk
* Accès facile aux divers axes routiers: aut. 15, 20, 720 et 10 et le pont Champlain.
* Accès rapide au centre-ville avec plusieurs moyens de se rendre.
Inclus : Cuisinière, four, hotte, lave-vaisselle, garde-manger, tringle à rideaux, stores et rideaux. Tous les luminaires, climatisation, chauffe-eau.
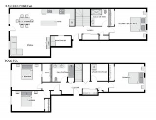
| Chambre | Dimensions | Niveau | Revêtement |
|---|---|---|---|
| Hall d'entrée | 16.3 x 5.9 P | Rez-de-chaussée | Plancher flottant |
| Hall d'entrée | 16.3 x 5.9 P | Rez-de-chaussée | Plancher flottant |
| Cuisine | 14.10 x 11.7 P | Rez-de-chaussée | Plancher flottant |
| Cuisine | 14.10 x 11.7 P | Rez-de-chaussée | Plancher flottant |
| Salle à manger | 13.7 x 11.7 P | Rez-de-chaussée | Plancher flottant |
| Salle à manger | 13.7 x 11.7 P | Rez-de-chaussée | Plancher flottant |
| Salon | 17.5 x 9.6 P | Rez-de-chaussée | Plancher flottant |
| Salon | 17.5 x 9.6 P | Rez-de-chaussée | Plancher flottant |
| Rangement | 9.1 x 4.7 P | Rez-de-chaussée | Plancher flottant |
| Rangement | 9.1 x 4.7 P | Rez-de-chaussée | Plancher flottant |
| Salle de bains | 7.10 x 7.5 P | Rez-de-chaussée | Céramique |
| Salle de bains | 7.10 x 7.5 P | Rez-de-chaussée | Céramique |
| Chambre à coucher principale | 16.2 x 13.5 P | Rez-de-chaussée | Plancher flottant |
| Chambre à coucher principale | 16.2 x 13.5 P | Rez-de-chaussée | Plancher flottant |
| Salle de bains | 9.9 x 7.11 P | Sous-sol | Céramique |
| Salle de bains | 9.9 x 7.11 P | Sous-sol | Céramique |
| Salle de lavage | 7.8 x 7.7 P | Sous-sol | |
| Salle de lavage | 7.8 x 7.7 P | Sous-sol | |
| Chambre à coucher | 13.3 x 11.9 P | Sous-sol | Plancher flottant |
| Chambre à coucher | 13.3 x 11.9 P | Sous-sol | Plancher flottant |
| Penderie (Walk-in) | 4.1 x 7.11 P | Sous-sol | Plancher flottant |
| Penderie (Walk-in) | 4.1 x 7.11 P | Sous-sol | Plancher flottant |
| Chambre à coucher | 16.10 x 9.1 P | Sous-sol | Plancher flottant |
| Chambre à coucher | 16.10 x 9.1 P | Sous-sol | Plancher flottant |
| Chambre à coucher | 15.8 x 12.5 P | Sous-sol | Plancher flottant |
| Chambre à coucher | 15.8 x 12.5 P | Sous-sol | Plancher flottant |
| Autre | 29.5 x 5.5 P | Sous-sol | Plancher flottant |
| Autre | 29.5 x 5.5 P | Sous-sol | Plancher flottant |
| Sous-sol | 6 pieds et plus, Totalement aménagé |
|---|---|
| Mode de chauffage | Air soufflé, Plinthes électriques |
| Restrictions/Permissions | Animaux permis |
| Proximité | Autoroute/Voie rapide, Cegep, École primaire, École secondaire, Garderie/CPE, Hôpital, Parc-espace vert, Piste cyclable, Transport en commun, Université |
| Salle de bains/salle d'eau | Autre, Douche indépendante |
| Équipement disponible | Balcon privé, Climatiseur mural, Échangeur d'air, Interphone |
| Armoires | Bois |
| Revêtements | Brique |
| Services disponibles | Détecteur d'incendie |
| Énergie pour le chauffage | Électricité |
| Stationnement | Extérieur |
| Type de fenêtre | Manivelle, Porte-fenêtre |
| Toiture | Membrane élastomère |
| Système d'égouts | Municipal |
| Approvisionnement en eau | Municipalité |
| Allée | Pavé uni |
| Topographie | Plat |
| Fenêtres | PVC |
| Zonage | Résidentiel |